Kaufpreis

699.000 €

ca. 195 m²
Wohnfläche
7
Zimmer
ca. 1.426 m²
Grundstück

Leben-Baden-Erholen-Arbeiten – alles in einem Objekt – in Borkheide

Einfamilienhaus zum Kauf

Zum Kauf Kamin Gäste-WC Swimmingpool Abstellraum Gartennutzung Energieausweis mit Warmwasser

Objekt-Nr: FS-3167


Preise

Provision für Käufer:

Nein

Kaufpreis:
699.000 €

Fläche

Wohnfläche:
ca. 195 m²
Zimmer:
7
Nutzfläche:
ca. 245 m²
Grundstücksfläche:
ca. 1.426 m²
Gartenfläche:
ca. 1.300 m²
Balkon/Terrasse Fläche:
ca. 85 m²

Räume / Flure

Etagen:
3
Schlafzimmer:
4
Badezimmer:
2
Balkone:
1

Zustand

Baujahr:
1996
Kategorie:
Standard
Zustand:
gepflegt
Unterkellert:
Ja

Weitere Informationen

verfügbar ab:
07/2026
Modernisierungen:
2000

Ausstattungsdetails

Bad mit:
Dusche, Wanne, Fenster
Küche:
Einbauküche
Boden:
Fliesen, Laminat

Stellplatz-Details

Carport:
Anzahl:
2

Beschreibung

Waldparadies in der Waldgemeinde Borkheide.

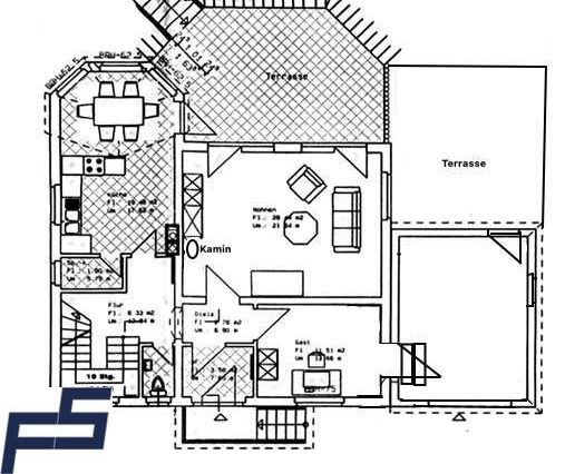
Inmitten der Kiefernwälder der Waldgemeinde Borkheide, fast am Ende der Bebauung liegt dieses idyllische Haus. Errichtet, 1996, auf einem gut 1.426 qm großen Grundstück. Später wurde die Garage noch zu weiterem Wohnraum ausgebaut. Zusammen mit der Wohnfläche im Soutterrain und den Nutzflächen im Keller und den Terrassen und dem Balkon können hier insgesamt gut 245 qm Wohn-/Nutzfläche beansprucht werden.

Ausgestattet mit 2 Bädern und 3 Toiletten, einem Kamin im Wohnzimmer, den je nach Tageszeiten in der Benutzung zu wechselnden Terrassen und dem Balkon und der Verteilung der Wohnräume über 3 Ebenen kann hier jedwede Art der Nutzung angedacht werden.
Sowohl zum Wohnen und Arbeiten, als auch für eine Nutzung als Mehrgenerationshaus oder durch die Aussentreppe ins 1. Obergeschoss auch als Wohnhaus mit Einliegerwohnung. Je nach Nutzung ergeben sich 7 Zimmer mit bis zu 5 oder auch 6 Schlafzimmern.

Es klingt fast zu schön – vereinbaren Sie einen Besichtigungstermin und überzeugen sich selbst von der traumhaften Lage, dem unglaublich vielseitig nutzbaren Gebäude und dem Garten mit idealer Ausrichtung nach Süd/West.

Ich freue mich auf Ihre Anfragen. Sowie der 1. Besichtigungstag festgelegt ist, komme ich direkt auf Sie als Interessenten zu und stimme für Ihre persönliche Besichtigung die Uhrzeit mit Ihnen ab.

Ich bitte Sie um Verständnis, dass ich die vollständigen Angaben zur Immobilie nur übermitteln kann, wenn mir alle Ihre Kontaktdaten (Wohnanschrift, Telefon, …) vorliegen.

Lage

Entdecken Sie Ihr neues Zuhause in der charmanten Waldgemeinde Borkheide! Dieses bezaubernde Einfamilienhaus liegt in einer ruhigen und idyllischen Umgebung, umgeben von dichten Wäldern und weitläufigen Naturflächen.

Borkheide bietet eine ideale Balance zwischen Stadtnähe und ländlichem Flair. Die Gemeinde ist nur etwa 60 Kilometer von Berlin entfernt, was Pendlern eine bequeme Anbindung an die Hauptstadt ermöglicht. Gleichzeitig genießen Sie hier die Ruhe und den Frieden einer ländlichen Wohngegend.

Die unmittelbare Umgebung des Hauses ist geprägt von gepflegten Gärten und viel Grün. Hier können Sie entspannende Spaziergänge unternehmen oder Ihre Freizeit in der Natur genießen. Die nahegelegenen Wälder laden zu ausgiebigen Wanderungen und Fahrradtouren ein.

In Borkheide finden Sie zudem alle notwendigen Annehmlichkeiten des täglichen Lebens. Einkaufsmöglichkeiten, Schulen und Kindergärten sind gut erreichbar. Die hervorragende Infrastruktur und die ausgezeichnete Verkehrsanbindung machen dieses Haus zu einer perfekten Wahl für Familien und Naturliebhaber.

Erleben Sie das Beste aus beiden Welten – die Nähe zur Großstadt und die Ruhe des Waldes. Willkommen in Ihrem neuen Zuhause in Borkheide!

Ausstattung

– Lage, Lage, Lage
– ca. 195 qm Wohnfläche
– ca. 245 qm Wohn-/Nutzfläche
– Einbauküche
– Kamin im Wohnzimmer
– zwei Bäder
– gesamt drei WC´s
– Haustechnikraum
– Heizungsraum und Lagerraum/Werkstatt
– zwei Terrassen
– ein Balkon
– Car Port
– Stellplatz auf dem Grundstück – zusätzlich
– Garten
– Pool
– Option des Zukaufs weiterer Garten-/Baulandsfläche

Sonstiges

Ich weise darauf hin, dass die von mir weitergegebenen Informationen zum Objekt, Unterlagen, Grundrisse etc. vom Verkäufer stammen. Eine Haftung für die Richtigkeit oder Vollständigkeit der Angaben übernehme ich vor diesem Hintergrund nicht. Es obliegt daher dem Kaufinteressenten, die darin enthaltenen Informationen und Angaben auf ihre Richtigkeit hin zu überprüfen.

An Eigentümer/Verkäufer: Ich bewerte selbstverständlich kostenfrei Ihre Immobilie entsprechend der aktuellen Marktsituation, entwickele eine Ihnen und Ihrer Immobilie angepasste Verkaufstaktik und stehe Ihnen bis zum erfolgreichen Verkauf und darüber hinaus bis zur Übergabe und den weiteren Abwicklungen zur Verfügung. Ferry Santner Immobilien ist ein Unternehmergeführtes Maklerunternehmen und steht für Werte wie Seriosität, Zuverlässigkeit und Diskretion.
Ich bin bestens vernetzt und werde immer den bestmöglichen Käufer für Ihre Immobilie suchen und finden.
Schreiben Sie mir eine E-Mail, nutzen mein Kontaktformular auf meiner Homepage oder Rufen mich direkt an – Ich freue mich auf Sie!


Standort

14822 Borkheide–Potsdam-Mittelmark - Borkheide


Galerie


Energieausweis

Baujahr
1996
Energieausweistyp
Verbrauch
Energieausweis gültig bis
11. August 2035
Endenergieverbrauch
64,1 kWh/(m²*a)
Energieausweis mit Warmwasser
Ja
Energieeffizienzklasse
B
Wesentlicher Energieträger
Flüssiggas
Energieausweis Ausstellungsdatum
2025-08-12
Befeuerungsart
Flüssiggas
  • A+
  • A
  • B
  • C
  • D
  • E
  • F
  • G
  • H
  • 0
  • 25
  • 50
  • 75
  • 100
  • 125
  • 150
  • 175
  • 200
  • 225
  • >250
 
Endenergieverbrauch: 64,1 kWh/(m²*a)

Objektanfrage

*“ zeigt erforderliche Felder an

Einverständniserklärung zur Kontaktaufnahme*

Ähnliche Immobilien